top of page
This site was designed with the
.com
website builder. Create your website today.
Start Now
PROFESSIONAL PORTFOLIO
UNDERGRADUATE PORTFOLIO
RESUME
CONTACT
PORTFOLIO MENU
Use tab to navigate through the menu items.
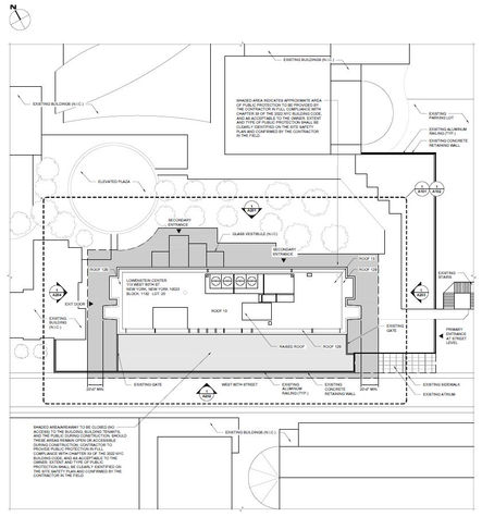
FORDHAM UNIVERSITY
LOWENSTEIN CENTER
ROOF REPLACEMENT
LOCATION:
113 WEST 60TH STREET
NEW YORK, NEW YORK
© Hoffmann Architects, Inc. 2022
bottom of page